
SOUTH MANIKDE, DHAKA CANTONMENT, DHAKA-1206
Aktar Hossain
Dear Prospective Buyer
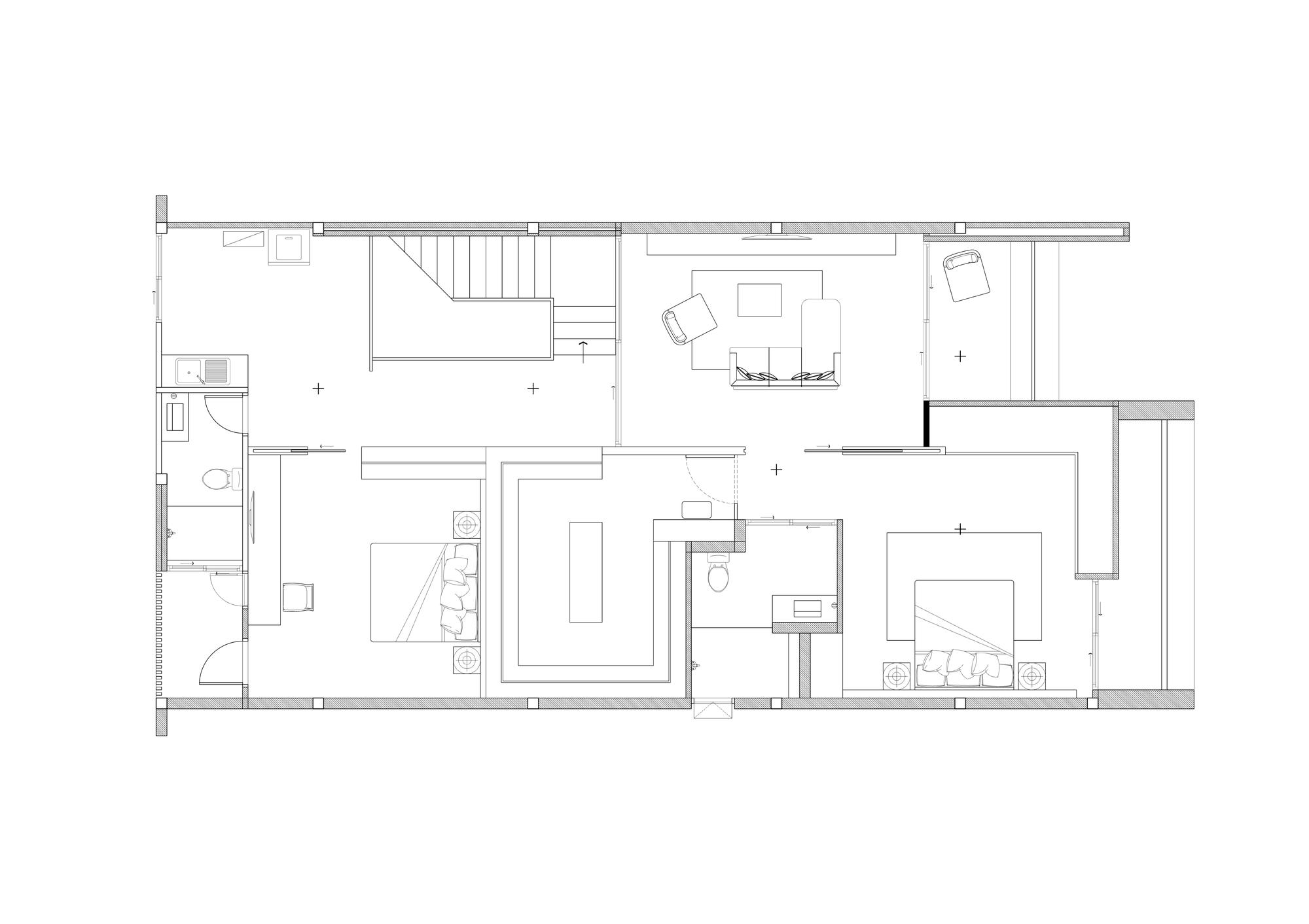
Let us share the pleasure of announcing a project-521, KHAN POLLI TWIN TOWER, SOUTH MANIKDE, DHAKA CANTONMENT, DHAKA-1206. The project located in a very serene environment with a road network to the mainstream activities which is as usual easy, smooth and time saving zone from MIRPUR, MIRPUR DOHS (MATRO RAIL), AIR PORT, BANANI, GULSHAN Fifteen minute Drive from Project. KHAN POLLI TWIN TOWER offers you spacious and comfortable living. Each functional area has been designed ensuring quality, commitment and professionalism put together by our team. To the more details this brochure will be a good guide. We request you to go through the brochure and get in touch with our friendly marketing team for any further queries. We wish a life time luxurious living. Thanking You NROLLI TWIN TOWER 35
Share On
Facebook
Linkedin
Twitter
Whatsapp
SMS
Mail